【空家情報_No.76】古町380万円 上水道完備! 8DK!下水道未整備!
物件の概要
上水道完備、下水道未整備、ガレージ付の上田市に近い8DKで、閑静な住宅地です。
登録No.76
| 分類 |
売買 |
|---|---|
| 希望価格 | 【売買】380万円 |
| 所在地 | 古町302 |
| 契約交渉の形態 | 一般媒介 |
写真
外観
玄関
和室
和室
和室
2階洋室
2階洋室
2階和室
階段
トイレ
浴室
台所
建物の概要
| 面積(平方メートル)
土地 宅地 |
315.93平方メートル |
|---|---|
|
面積(平方メートル) |
181.98平方メートル |
| 構造 | 木造瓦葺2階建 |
| 建築年月日 | 昭和46年 |
| 補修の要否 | 大幅な補修必要 |
| 補修の費用負担 | 入居者負担 |
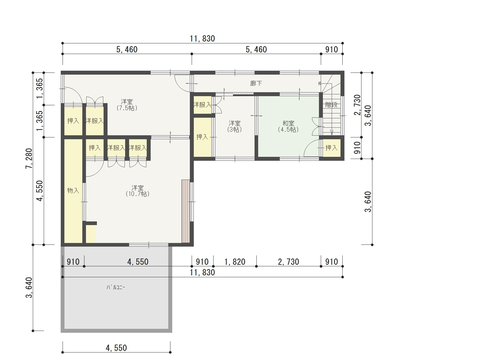
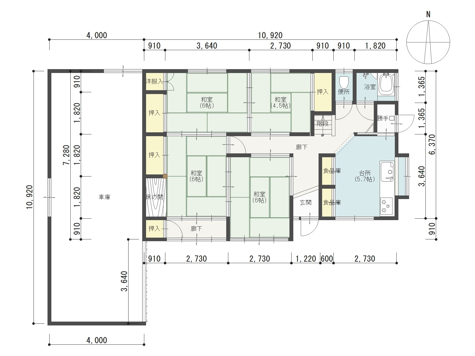
間取り
1階
2階
航空写真から見る建物
(注意)敷地部分は赤く囲ってありますが、おおよその位置なのであくまで参考にご覧下さい。
航空写真(遠)
航空写真(近)
設備状況
| 電気 | 引き込み済み |
|---|---|
| ガス | プロパン |
| 風呂 | 灯油 |
| 上水道 | 有り |
| 下水道 | 未整備 |
| トイレ | 汲取り |
| 駐車場 | 有り(3台) |
| 物置 | 有り |
| 庭 | 有り |
| その他 |
地図
空家情報
この記事に関するお問い合わせ先
総合政策課 移住定住係
〒386-0603
長野県小県郡長和町古町4247番地1
電話番号:0268-75-2066
お問い合わせはこちら





更新日:2025年12月15日