【空家情報_No.65】長久保 700万円 上下水道完備! リフォーム済みの5LDK!
物件の概要
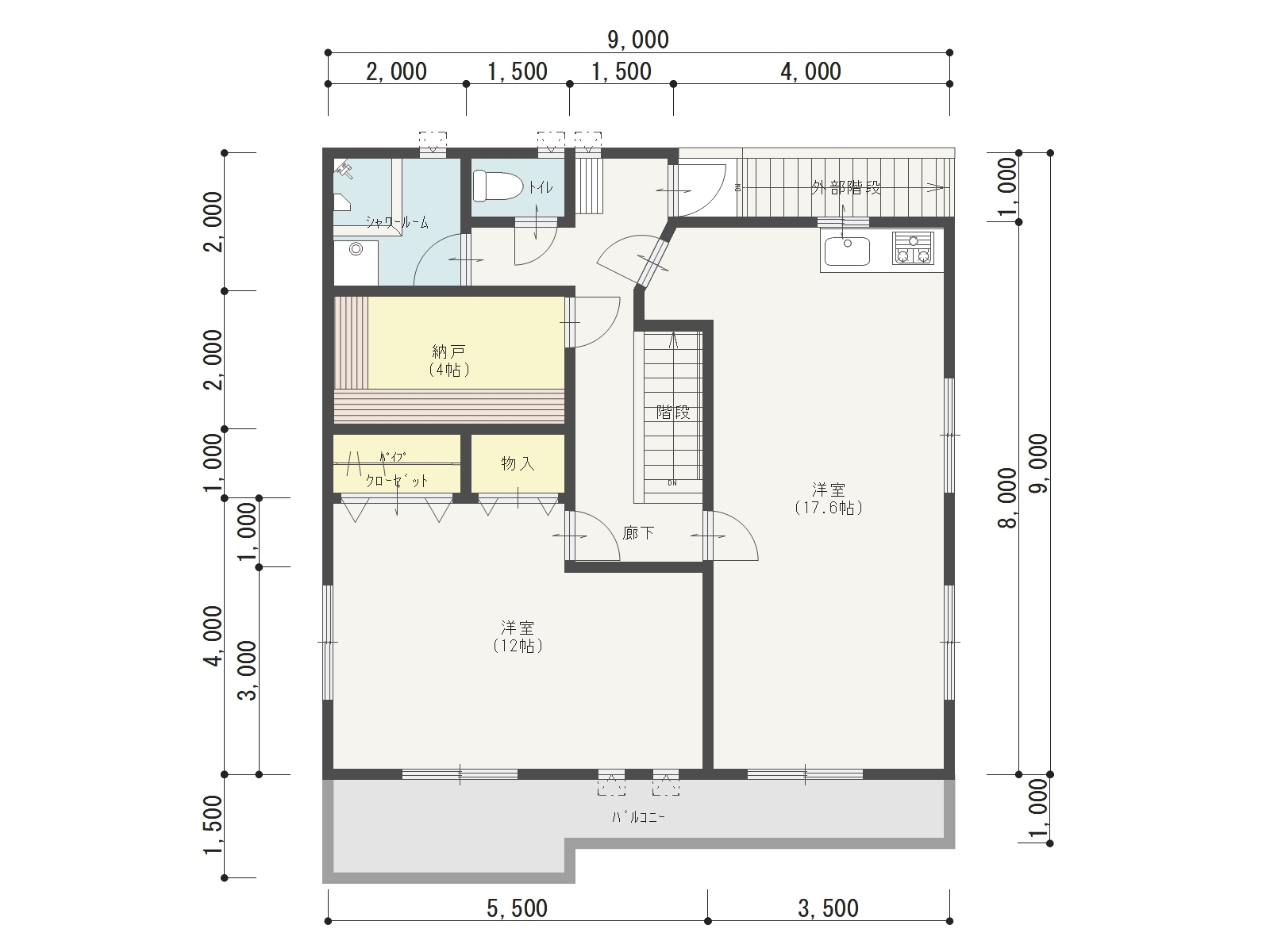
上下水道完備で、保育園・小学校・郵便局・農協などの施設も近く、生活に便利です。一階に洗面所、トイレ、浴室、二階にトイレ、シャワールームがあり、二階へつながる外部階段もあり、大家族向きです。別途農地(地目:田)303.00平方メートル付きです。
登録No.65
| 分類 |
売買 |
|---|---|
| 希望価格 | 【売買】700万円 |
| 所在地 | 長久保674-7 |
| 契約交渉の形態 | 一般媒介 |
写真
外観
リビング
和室
洋室
洋室
玄関
トイレ
浴室
洗面所
シャワールーム
台所
駐車場
建物の概要
| 面積(平方メートル)
土地 宅地 |
167.88平方メートル |
|---|---|
|
面積(平方メートル) |
156.50平方メートル |
| 構造 | 木造2階建 スレート葺 |
| 建築年月日 | 平成8年10月10日 |
| 補修の要否 | 補修は不要 |
| 補修の費用負担 | 入居者負担 |
間取り
1階
2階
航空写真から見る建物
(注意)敷地部分は赤く囲ってありますが、おおよその位置なのであくまで参考にご覧下さい。
航空写真(遠)
航空写真(近)
航空写真から見る農地
(注意)農地部分は赤く囲ってありますが、おおよその位置なのであくまで参考にご覧下さい。
航空写真
設備状況
| 電気 | 引き込み済み |
|---|---|
| ガス | プロパン |
| 風呂 | 灯油 |
| 上水道 | 有り |
| 下水道 | 有り |
| トイレ | 水洗 |
| 駐車場 | 有り(2台) |
| 物置 | 無し |
| 庭 | 有り |
| その他 |
地図
空家情報
この記事に関するお問い合わせ先
総合政策課 企画政策係
〒386-0603
長野県小県郡長和町古町4247番地1
電話番号:0268-75-2064
お問い合わせはこちら





更新日:2025年05月26日